Profil
Projekte
Referenzen
Stadtplan
Schumannstraβe
Penthouse
Obergeschoss
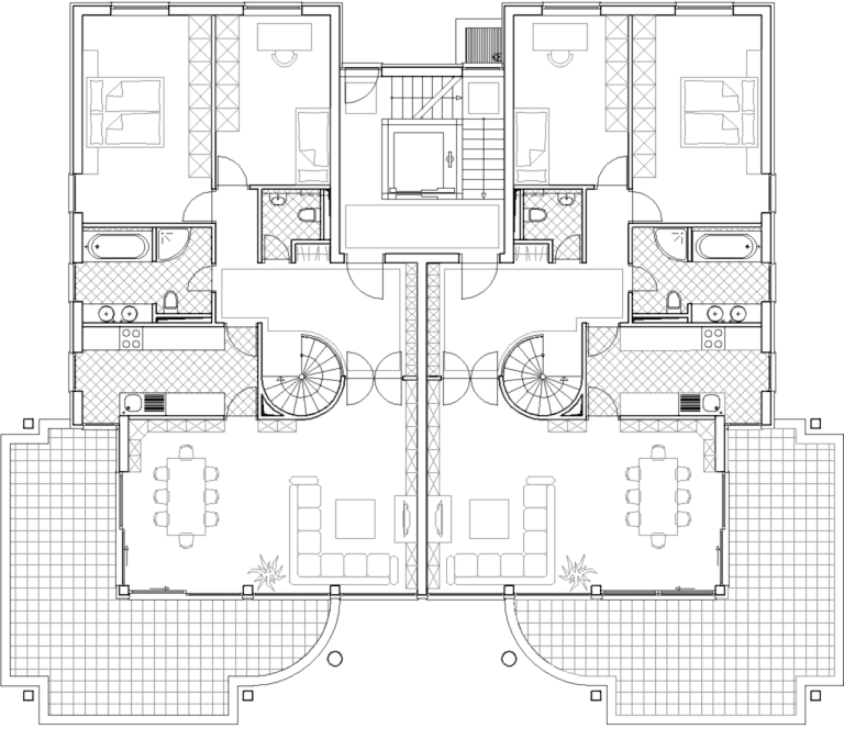
Erdgeschoss
Grundriss
Draufsicht
Perspektive
Impressionen
Lageplan
Panorama
Kontakt
Erdgeschoss Grundriss
Erdgeschoss Draufsicht
Erdgeschoss Perspektive
Impressionen
(in Vorbereitung)